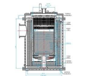
蓝宝石生长炉热场结构示意图侧屏:
对于80~200公斤级的蓝宝石生长侧屏设计方案为:
每层分12~16块,防止材料在高温环境下发生形变现象时产生开裂;块与块之间”尖角”错缝拼接,可以有效保障温场密封型,在高温环境下产生形变不会出现坍塌现象:根据侧屏高度再加以设计层数,每层上下直缝拼接。侧屏内壁在高温下自然形成上下导热槽,避免高温区的热流不畅现象"大幅度的延长我司材料使用寿命。
优点: 1、与传统保温材料相比,氢化结纤维制品的材料能够有效降低长晶的使用功率,节能达到40%以上:2、减少长晶周期,可节约2~4天的时间 (根据炉型的不同效果不同) ;
3、氧化结纤维制品在高温环境下没有挥发,绿色环保,减少整个温场的污染;
4、与原先使用的传统保温材料相比,使用氧化错纤维制品材料生长出来的蓝宝石质量要更加优良。
南京理工宇龙新材料科技有限公司
咨询请告知是在「新材料帮」上看到的,有助于交易达成。
